帖子详情

琶洲29亿底价成交四宗靓商地 阿里唯品会TCL华邦来了

20293房产楼市

[p=30, null, left]2月28日上午,琶洲底价成交四宗靓商地,总成交价295512万元。其中,阿里巴巴与唯品会二度进驻琶洲,分别夺得本次拍地的连接体2号与3号地块,楼面价为18000元/㎡;华邦、TCL则为首次进驻,分别竞得AH040108&AH040110地块、AH040113地块。

[p=30, null, center]

[p=30, null, left]资料显示, 目前琶洲共成功出让了19宗商业地,聚集了包括腾讯、阿里、YY语音、唯品会、小米等14家互联网电商巨头,在众多企业项目中,复星、阿里巴巴、唯品会等8家已动工建设,相信随着互联网巨头的纷纷进驻,电商总部的初步形成,琶洲的区域经济将更上一个台阶。

[p=30, null, left]华邦控股首次进驻琶洲

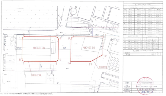
[p=30, null, left]拿下琶洲西区AH040108、AH040110地块

[p=30, null, left]竞买人条件:须为从事基础设施建设的企业

[p=30, null, center]

[p=30, null, center]琶洲西区AH040108、AH040110地块建设用地规划红线图

[p=30, null, left]琶洲西区AH040108、AH040110两宗地块为打包出让,起拍价约13亿,折合楼面价14535元/平,建筑均限高150米,绿地率≥10%。

[p=30, null, left]要求竞买人或其控股企业须为从事基础设施建设的企业,并具备国家公路工程和市政公用工程施工总承包一级资质。竞得人须在广州市注册成立,并办理工商注册及税务登记。此外,AH040108地块项目建成后,受让人自持物业不得低于项目计算容积率总建筑面积的70%;AH040110地块项目建成后,受让人需自持酒店物业。

[p=30, null, left]两地块均设置了一定的公建配套。值得注意的是,地块允许配置不超过地块计容建筑面积15%比例的员工宿舍,应只租不售。

[p=30, null, left]TCL也来了

[p=30, null, left]竟得琶洲西区AH040113地块

[p=30, null, left]竞买人条件:智能产品制造及互联应用服务的全球化企业

[p=30, null, center]

[p=30, null, center]AH040113地块建设用地规划红线图

[p=30, null, left]资料显示该地块为商务设施用地兼容商业设施用地,占地8465平,容积率≤12.7,计容建面≤107506平。建筑高度限150-165米,其中,东侧塔楼限150米,西侧塔楼高度不得突破165米;绿化率≥10%。

[p=30, null, left]起拍价为161259万元,折合楼面价为15000元/平。

[p=30, null, left]要求竞买人或其控股股东须为从事智能产品制造及互联应用服务的全球化企业,同样要求在广州市注册成立。项目建成后,受让人自持物业不得低于项目计算容积率总建筑面积70%。

[p=30, null, left]阿里巴巴琶洲再度出手

[p=30, null, left]夺下跨市政道路连接体2号地块

[p=30, null, left]竞买人条件:可建空中连廊和地下连接体

[p=30, null, center]

[p=30, null, center]跨市政道路连接体2号地块红线图

[p=30, null, left]连接体2号地块为商务设施用地兼容商业设施用地,占地1852平,可建设空中连廊和地下连接体,空中连廊建面≤176平,起拍价为316.8万,楼面价为18000元/平。

[p=30, null, left]从红线图可看出,主要连接208和230地块,即阿里巴巴华南运营中心。

[p=30, null, left]唯品会再拿商地

[p=30, null, left]夺得互联网创新集聚区跨市政道路连接体3号地块

[p=30, null, left]竞买人条件:可建空中连接体、空中连廊和地下连接体

[p=30, null, center]

[p=30, null, center]连接体3号地块红线图

[p=30, null, left]互联网创新集聚区跨市政道路连接体3号地块为商务设施用地兼容商业设施用地,占地613米,可建设空中连接体、空中连廊和地下连接体。空中连廊建面≤50平方米,空中连接体建面≤1800平方米,地下连接体建面≤2452平方米。

[p=30, null, left]起拍价为3330万元,楼面价为18000元/平。主要连接232和234地块,即唯品会全球总部大厦。

2017/03/01
全部回帖
2月28日上午,琶洲底价成交四宗靓商地,总成交价295512万元。其中,阿里巴巴与唯品会二度进驻琶洲,分别夺 ...
底价成交  是不是竞价之前都谈好了?商业地块真不值钱。
2017/03/01回复
那个地方被华南快速给隔断了,会展中心区域中的大家庭和南园居两个小区十年之内被征收迁走,可能会安置到琶洲西区的南边或者现在万胜围琶洲新村的东边(地下全是火车车库)。琶洲的华快和科韵路中间全变成商业用地。。
2017/03/01回复
猜你喜欢

宇宙最全!广州地铁最新进展出炉,9号线沿线成交最活跃,13号线沿线成交价最低!(附地

赤岗的楼盘升值潜力大么?

买二手旧房要注意啦!房产土地使用年限到期 100万房子需花数十万续地

热点推荐

早高峰地铁口被共享单车堵死 谁能管管?

40岁后再看婚姻 你还会觉得它值得吗?

顺德民信老铺糖水踩雷?甜到齁

中年女人 那些变美的实用小方法

广州麻友优惠好物群 欢迎进群~

2026装修必进宝藏群 让你省心不踩坑

教育局进校园检查教辅资料

这几天,你有给雨困住么

用心栽种百合,收获满满欢喜

有同小区换房的吗?

在电信上班不知不觉三年

意外发现的三楼小花园,藏着生活的温柔

70后,后半生用心过好每一天

查看更多热点 >

回帖