锦绣阳光花园 / 三室两厅 / 87.00㎡
半包 / 现代简约/ 预算18.00万元 / 2026-03-07开工
设计 - -
装修准备(1)思考需求,设计平面方案。
买了个小毛坯房,可以省去打拆费用,按自己心意装修啦。
装修前,要明确房子的功能定位,是老人养老房,常住人口2老人,聚会时吃饭可能18~20人,留宿时住宿6-8人,所以要以安全为主,能收纳比较多的被褥等物品,平时就留白多一点。
然后是总结上次的装修经验,问问老人觉得有没有不满意的地方,她不满意的就是衣服挂的空间不够,长衣服挂不直,第二点就是厨房玻璃胶不能发黑发霉,不想打扫卫生那么辛苦。
找下适合的家具,桌子都要可变可折叠的,宜家的折叠桌挺适合
沙发也需要变成小的床,所以选沙发床
小房特别小,不想做榻榻米占用空间,想买折叠床,平时放个小沙发,需要留宿时拉出来变成床

装修准备(2)找装修公司量房
因为在异地,所以特别珍惜过去的时间,过户当天就约了三个人上门量房,然后中介还介绍了一个,就有四个人量房,目前收到了三份设计。
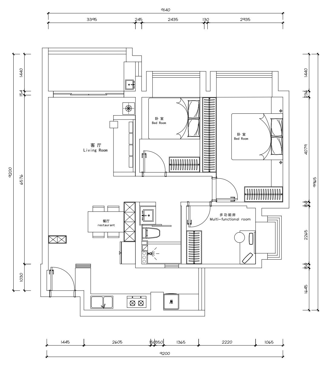
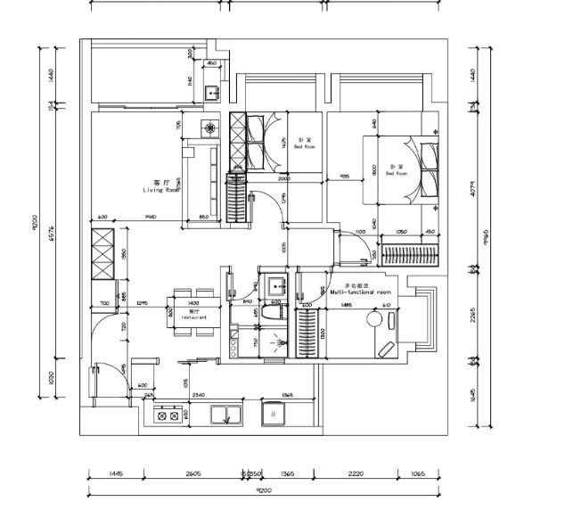
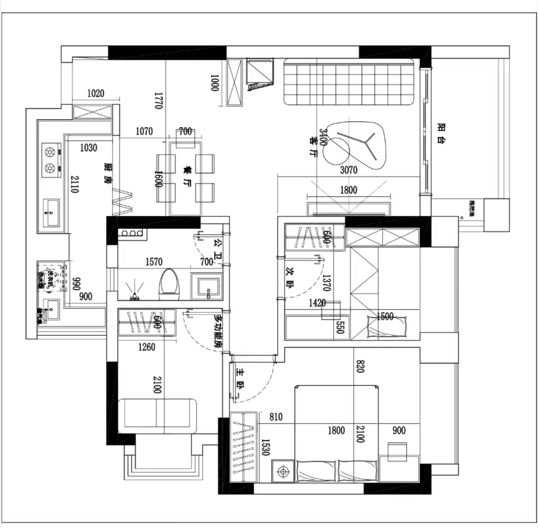
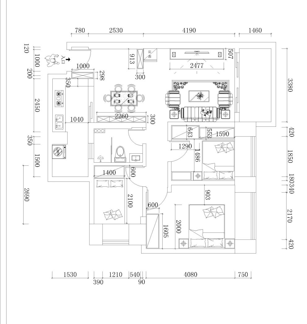
都是在不断碰撞,我自己先用卷尺量下各地方尺寸,规划下放了家具家电后的位置,更有空间感。目前收到的方案大概是这样
主要的拆改变化有:打拆入门的墙,做鞋柜和橱柜,橱柜台面用鞋柜台面
移动次卧的房门和洗手间房门,让次卧可以做满一排衣柜



